
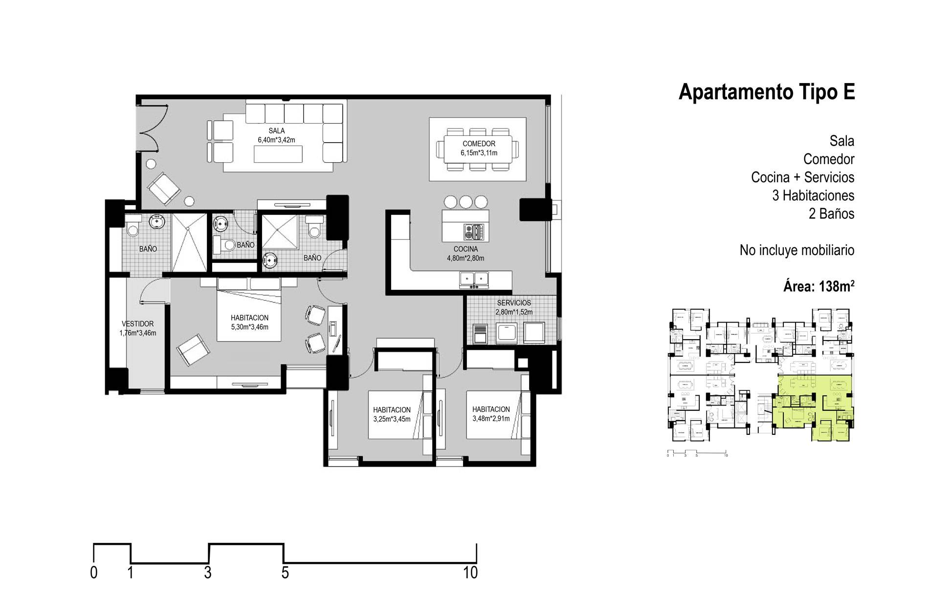
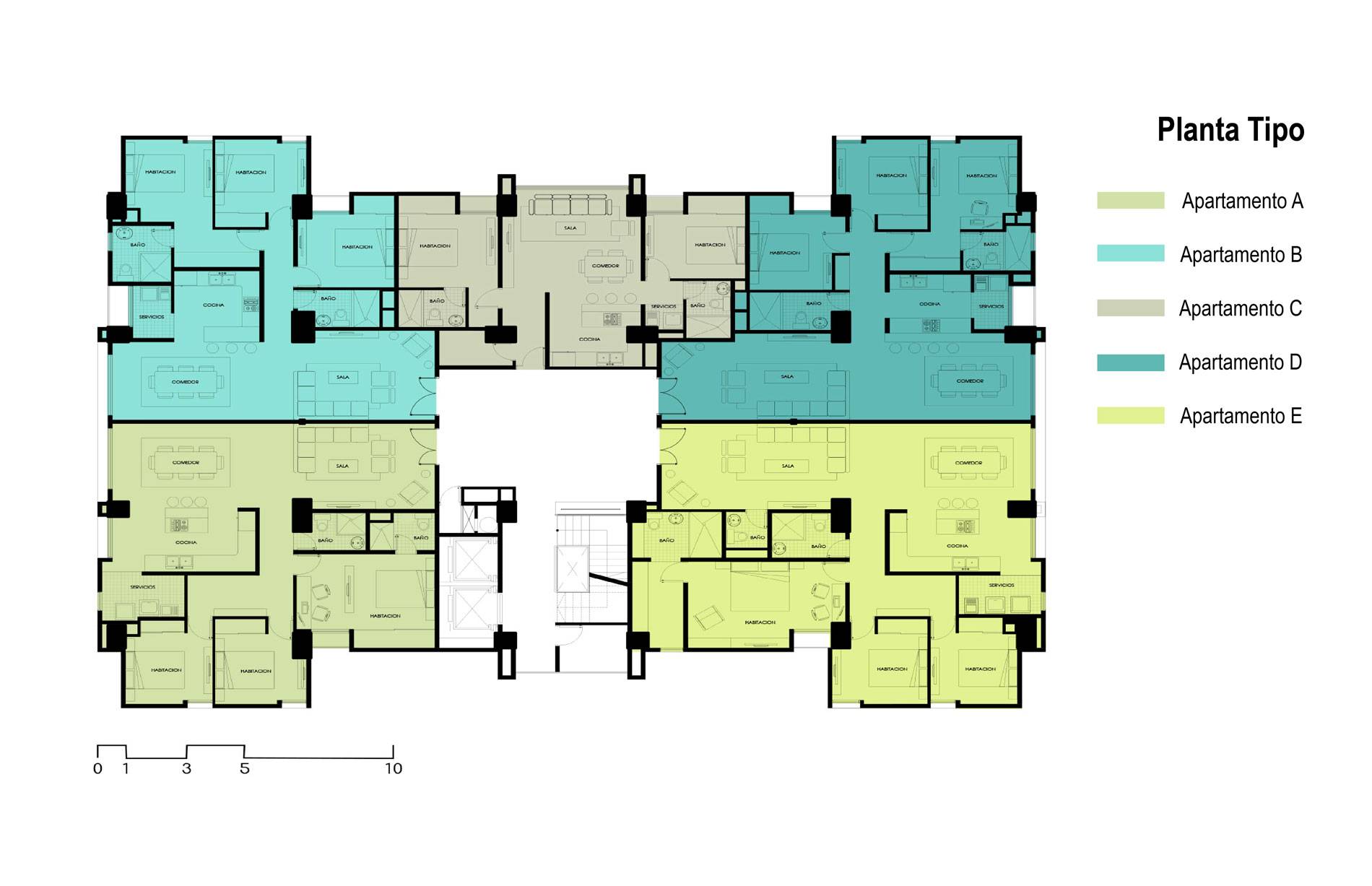
Ubicada en la Avenida Bracamonte a pocos metros del Centro Comercial Sambil se ubica nuestra torre de apartamentos de lujo, con 64 apartamentos de 2 y 3 habitaciones y dos locales comerciales en la planta baja. Consta de un gimnasio con baños, sala de juego para los mas jóvenes, oficina para condominio, cuarto de empleado, sala de fiesta con cocina, Lobby de acceso, sala de espera y una cancha deportiva, todo esto suma mas de 2.300 M2 de áreas comunes.
100% terminado.


















